Back to Home Page of CD3WD Project or Back to list of CD3WD Publications

CLOSE THIS BOOKSurface Water Treatment by Roughing Filters - A Design, Construction and Operation Manual (SANDEC - SKAT, 1996, 180 p.)
Annexes
VIEW THE DOCUMENTSimple methods for water quality analysis
VIEW THE DOCUMENTSimple methods for discharge measurements
VIEW THE DOCUMENTSalient data and features of slow sand filters
VIEW THE DOCUMENTRoughing filter theory
VIEW THE DOCUMENTPilot plant design examples
VIEW THE DOCUMENTRoughing filter design examples
VIEW THE DOCUMENTOutline for caretaker training
VIEW THE DOCUMENTMonitoring of filter operation
VIEW THE DOCUMENTAcknowledgements and credits

Surface Water Treatment by Roughing Filters - A Design, Construction and Operation Manual (SANDEC - SKAT, 1996, 180 p.)

Annexes

Simple methods for water quality analysis

1. Introduction

The following difficulties often hinder implementation of a water quality monitoring programme:

· availability of only a few water quality laboratories in the country, and possible transport and communication difficulties between the laboratory and the field,

· analysis of water samples only possible in the laboratory for lack of appropriate field test equipment. Delay and mishandling of the samples may lead to errors,

· unavailability of basic infrastructure (e.g. power supply) and qualified personnel at the treatment plant.

As a consequence, water quality monitoring on a regular basis is frequently neglected. Water treatment processes, however, have to be controlled, otherwise it may often cause the disinterest in the treatment as a whole.

In order to overcome the mentioned difficulties, some simple sturdy field test methods have been developed to monitor the efficiency of filters with respect to solid matter reduction: Turbidity and the suspended solids concentration are the main parameters which determine physical filter performance. In addition, the volume of settleable matter might be of interest if no pretreatment system (e.g. sedimentation tank, raw water reservoir) is available prior to filters. Finally, the suspension stability has an influence on the settling characteristics of the suspended matter.

Simple methods and sturdy equipment are now available for the determination of the different parameters. SANDEC has developed a field test kit, as shown in Photo 1 /1, containing all the necessary equipment for turbidity, filtrability and settleable solids determination. Neither chemicals nor energy are necessary to carry out the tests. Only filter paper required for the filtrability test will have to be supplied from outside. The field test equipment described hereafter can easily be copied by local workshops experienced in processing plastic material.


Photo 1/1 Field Test Kit (developed and assembled by SANDEC)

2. Equipment and Procedures

2.1 Turbidity

Turbidity is measured by a test tube that has been developed by DelAgua and which is included in a field test kit for bacteriological (faecal coliforms) and physical/chemical analysis (pH, conductivity, chlorine). More information on this field test kit can be obtained from DelAgua, P.O. Box 92, Guildford GU2 5TQ, England [7]. SANDEC has adapted the turbidity test tube by the addition of a small valve which makes turbidity readings simpler (drainage of the filled test tube until the black circle appears instead of a stepwise tube filling until the black circle disappears).

Test Procedure for Turbidity Analysis:

- assemble the two turbidity tubes by placing the lower in the stand and by inserting the upper in the lower tube through the hole of the stand

- check that the valve is in a closed position

- slowly pour the water in the inclined test tube avoiding splashing and the formation of bubbles. Fill the tube up to mark 5

- ensure that no easily settleable solids are poured into the test tube since these would cover the black circle

- place the test tube on a white paper and avoid exposing the equipment to direct sunlight

- observe the test tube from a vertical position and open the valve

- close the valve as soon as you can see the black circle at the bottom of the test tube

- record the water level, convert it into turbidity units and record the result in the log book

- remove all water from the test tube and clean it.


Turbidity Test Tube

2.2. Filtrability

The suspended solids concentration analysis, which requires very accurate equipment, is replaced by the filtrability test. The test will produce relative values sufficient to monitor the efficiency of prefilters and roughing filters in solid matter removal.

Test Procedure for Filtrability Analysis:

- remove the vessel from the filter support by lifting the clamp and separate the porous filter disk from the filter support

- place the filter support on the stand

- close the tap (horizontal position)

- fill the filter support with water

- reinstall the porous filter disk in the filter support and make sure that the disk is fully saturated with water

- place a filter paper No. 595 (Schleicher and Schüll) or any other filter paper with a medium filterability on the filter support and press it slightly to the porous disk to avoid air pockets below the filter paper

- place the funnel on the support and fix it with the clamp

- place a measuring cylinder under the filtrability apparatus

- pour 500 ml of the water to be tested in the funnel

- open the tap (vertical position), turn the sand clock and record the filtered water volume in ml after 3 min. (after 1, 2 and 3 min. if watch is available)

- remove the filter paper and the porous disk, refill the filter support, reinstall the porous disk and replace the paper according to the described procedure

- analyse a second water sample in the same way

- enter the results in the record sheet if they are of the same order of magnitude (deviation + 20%), otherwise repeat the test for a third time

- remove all water from the filtrability apparatus and clean it

- plot the recorded filtrability values of the different water samples in relation to time (min) on a graph as shown in Fig. 1/1 as it enables the solids removal efficiency of the different treatment stages to be determined; water to be treated by slow sand filtration should have a filtrability value of at least 200 ml/ 3 min. and the filtrate of slow sand filters a value of 300 ml/3 min.


Filtrability Test Installation


Fig. 1/1 Filtrability of different raw water sand treatment stages

2.3 Settleable Solids

An adapted Imhoff cone, commonly utilised for the analysis of waste water containing large volumes of Settleable solids, is used here to measure also small quantities of Settleable matter. This test enables the determination of the amount of solids removed by sedimentation. However, the test is only useful for raw water carrying a high concentration of Settleable solids. This test provides information on the settling characteristics and suspension stability of the solid matter. For example, a raw water with an initial turbidity of 50-100 NTU which shows a volume of only 1 ml/l of Settleable matter after a period of 24 hours will most probably be difficult to treat and, hence, require pilot plant tests.

Test Procedure for the Determination of Settleable Solids:

- start your sedimentation test in the early morning hours to avoid taking late night readings

- check the tightness of the screw

- insert the Imhoff cone on the stand placed on a firm table

- pour 1 litre of the water to be analysed into the Imhoff cone

- record the volume of settled material after 15 min. 30 min. 1, 2, 4, 8 and 24 hours and enter the results in the record sheet

- empty the water from the test tube by removing the screw and clean the Imhoff cone

- reinstall the screw in order not to lose it


Settleable Solids Test Cone

2.4 Suspension Stability

The stability of a suspension and settling properties of the suspended matter can be determined by a sedimentation test. Recording of turbidity decrease in relation to time is the simplest monitoring procedure for such a test. The water sample must be kept undisturbed during the test period. Therefore, small water volumes are extracted carefully and the turbidity measured in a common turbidity meter or by the turbidity test tube described above which, however, gives less accurate results.

Test Procedure for Suspension Stability Analysis:

- start your suspension stability test in the early morning hours to avoid taking late night readings

- place the stability test vessel on a firm table not exposed to direct sunlight

- fill the vessel with the water to be analysed until the water level reaches the "0"- sign mark (required water volume about 2.5 litres)

- place the short measuring stick into the vessel

- observe the vessel through the vertical slot located at the small end of the vessel, move the measuring stick backwards and forward until you start to recognise the bold black line on the stick increase the sensitivity of the measurement by using the fine line of the measuring stick in case the bold line does not disappear when placed at the rear end of the vessel

- record the type (fine or bold line) used for reading and the position of the stick by the scale installed at the long end of the vessel, this record in mm is the initial turbidity value of the suspension stability test

- exchange the short measuring stick for the longer one and install it in the vessel by placing its end at the far end of the bottom

- observe the line of the stick through the vertical slot located at the small end of the vessel, record the position where the inclined line of the stick disappears and note the time

- do not change the position of the measuring stick anymore nor shake the vessel as this would disturb the stability test

- repeat your reading of the position where the inclined line of the stick disappears after 15, 30, 60, 120 min. and after 4, 8, 24, 32 and 50 furs.

- plot the recorded values (mm) in relation to time (hrs) on a graph similar to the one shown in Fig. 1/ 2 as it will help to analyse the stability of the suspension


Suspension stability


Fig. 1/2 Suspension stability of different raw waters

A special vessel without turbidity reading equipment is required for the described test procedure. A simpler test with three beaker sand some fine plastic tubes can be carried out in case a commercial turbidity meter requiring small water volumes (about 25 ml) for turbidity readings is available.

Test Procedure for a Simple Suspension Stability Analysis:

- fix one small plastic tube on each wall of three beakers so that one end of the tubes reaches the upper part (about 5 cm below the beaker's crest) of the beaker, the other ends about 20 cm below the beaker's bottom

- place the three beakers on a firm table, fix a clamp at the outside end of the tubes and fill the beakers with water

- carefully siphon water samples for turbidity readings out of the beakers

- record the turbidity of the water samples

- take records after 0, 15, 20, 60, 90, 120 min and after 4, 8, 24, 32, 50 furs.

- plot the recorded turbidity in relation to time (hrs) on a graph as shown in Fig. 1/2 as it will help to analyse the stability of the suspension

2.5 Sequential Filtration Tests

The Turbidity, Filtrability and Suspension Stability Tests can only give qualitative information on the amount and settling characteristics of the solid matter found in surface water. However, these tests do not describe particle size characteristic of a suspension, an important parameter which greatly influences treatability of a water and, hence, filter efficiency. Highly sophisticated and expensive apparatus such as Coulter Counters and scattering light analysis are available to measure particle size distributions. Since these instruments are not affordable by common water quality laboratories, EAWAG/SANDEC has developed in cooperation with local partners in developing countries, an alternative and simple method called "Sequential Filtration Tests" [62] which provides reasonable information on particle size characteristics of a suspension. The analysis only requires special filter paper (polycarbonate capillarpore membranes, manufactured by e.g. NUCLEPORE), a filter holder with a syringe and a turbidity meter.

Test Procedure for Sequential Filtration Test:
- place a filter paper with the largest pore size (e.g. 14 mm) in the filter holder filter

- a specific volume (e.g. 25 ml) through this filter paper

- record the turbidity of this first filtrate

- place a filter paper with the next smaller pore size (e.g. 10 mm) in the filter holder

- filter again 25 ml of raw water through the second filter paper

- record the turbidity of the second filtrate

- continue with the same procedure using a sequence of filter papers with decreasing pore size (e.g. 5, 2, 1, 0.4, and 0.1 mm)

- plot the recorded turbidity values in relation to the filter pore sizes on a graph as shown in Fig. 1/3. It will reveal the particle size distribution of the analysed suspension.


Fig. 1/3 Particle size distribution of different raw waters

Simple methods for discharge measurements

1. Introduction

Discharge measurements are necessary to control the flow through the treatment plant. The total flow has to be distributed evenly amongst the different filter units running in parallel. Unequal flow distribution will usually reduce the overall performance of the filters. Flow adjustments are required to cope with the weekly and seasonal demand fluctuations. Furthermore, flow adjustments are also necessary before and after cleaning and maintenance work.

Fixed installations or mobile equipment are used for discharge measurements. Since flow control plays an important part in treatment plant operation, the use of fixed installations is recommended.

2. Fixed Installations

Flow meters are relatively sophisticated and mechanically sensitive. Solid matter (sand, silt) carried by the water, can easily damage the device. It is therefore strongly recommended not to use such equipment in water treatment plants. Flow measurements at the outlet of a clear water tank might be the exception.

V-notch weirs are simple, strong and cheap installations, and, therefore, most suitable for flow control in water treatment plants. Weirs can be made from wooden boards or preferably steel or plastic plates. The weir's discharge is measured by recording the water height above the deepest point of the weir's crest.

A gauging rod, fixed at a distance of minimum 30 cm from the inlet weir and marked with different colours (e.g. green in the range of the design capacity, red for the zone above design capacity and yellow for the one below design capacity), will ease measurements. Compared to a 90° angle weir, V-notch weirs with a 60° angle will increase the accuracy of the readings. Slot-shaped holes in the weir's plate and in the gauging allow and accurate adjustment of the horizontal position. Fig. 2/1 gives more details on the possible dimensions of a weir's plate. The relation between water height and weir's discharge is listed in Table 2/1 and is shown as a graph in Fig. 2/2.

Table 2/1 Discharge over a 60° V-notch weir

Height of water hW (cm) above weir crest

I/s

flow rate l/min

m³/h

1

0.01

0.6

0.036

2

0.05

3.0

0.180

3

0.13

7.8

0.470

4

0.27

16

0.970

5

0.46

28

1.7

6

0.73

44

2.6

7

1.08

65

3.9

8

1.50

90

5.4

9

2.02

121

7.3

10

2.63

158

9.5


Fig. 2/1 Details of a 60° V-notch weir - View Plan


Fig. 2/1 Details of a 60° V-notch weir - Section View


Fig. 2/2 Calibration Curve

3. Mobile Devices

The simplest method to measure water flow is to record the filling time of a determined bucket volume. This procedure is inaccurate for high flow rates as filling time becomes very short and easy handling is hampered by the weight of the filled bucket.

Therefore, SANDEC has developed a more suitable flow control device which is illustrated in Fig. 2/3. The overfalling water flows into a bucket whose lower end is equipped with a calibrated nipple through which the water is discharged. An equilibrium between in and out flow will soon be established. The water height from the centre of the nipple is recorded and the discharge read from the graph as presented in Fig. 2/4. This method does not require a watch nor special material. A commonly used bucket or a small drum can be used as vessel. The nipple is assembled with standard pipe fittings and does not require great accuracy with respect to its length as shown by the graph. A separation wall with an opening of approx. 2 cm above the vessel's bottom creates a turbulence-free water level in the effluent's compartment. Finally, the distance from the centre of the nipple is marked on a half cm scale in the inner wall of the bucket. Flow rates between 6 and 30 I/min can be measured accurately with this simple device equipped with a 1/2" nipple. Larger nipple sizes can be used for higher flow rates and to reduce the water level difference required by the measurement.


Fig. 2/3 Simple Flow Control Device


Fig. 2/4 Calibration Curve for 1/2" nipple

4. Flow Control and Distributor Box

V-notch weirs are also installed in special structures used for flow distribution and possibly also for maximum flow limitation. An example of such a structure is illustrated in Fig. 2/5. This illustration shows a flow control box used in the raw water supply line and placed in front of the treatment plant. The flow which runs through the outlet pipe to the treatment plant is measured by the V-notch weir and gauging rod. A rectangular overflow weir in the inlet chamber limits the maximum flow through the treatment plant. The surplus water is discharged through the overflow pipe.

The controlled total flow through the treatment plant must be evenly distributed to the treatment units running parallel. This is achieved by a distributor box equipped with several V-notch weirs. Since such a box concentrates the flow control in one installation, it simplifies the hydraulic layout of a treatment plant and increases the operational flexibility. The inlet weirs of the subsequent treatment units can be omitted with such a layout.

Details of a Flow Control Inlet Box


Fig. 2/5 Details of a Flow Control Box

Salient data and features of slow sand filters

(for more detailed information see Ref. [15, 16, 17])

Design criteria

filtration velocity

vF

0.1 - 0.2 - (0.3 - 0.4) m/h

area per filter bed

A

10 - 50 - (100) m²

number of filter beds


minimum of 2

height of supernatant water

hW

1 - (1 5) m

depth of filter sand bed

hf

(0.6) - 0.8 - 1 m

depth of underdrains system and filter support

hs

(0.2) - 0.3 - 0.5 m

specification of filter sand

effective size

d10

0.15 - 0.35 - (0.6) mm

uniformity coefficient

UC 2 - 5


specification of filter support

size/depth

1-1.5 mm/10 cm


(size of the support medium should be roughly 4 x the size of

4 - 6 mm /10 cm


the medium to be supported)

15 - 15 mm / 15 cm



Fig. 3/1 Main Features of a Slow Sand Filter

Common design faults and their consequences (see also Fig. 13)

1. Inappropriate or missing flow rate control installations ® filter often overloaded or operated at frequent flow rate changes.

2. Water pressure in effluent line lower than the top level of the sand bed ® generation of negative pressure (vacuum) in the sand bed resulting in air release and additional filter resistance.

3. Inappropriate sand size and depth of filter bed ® poor effluent quality (coarse sand, small depth) or short filter runs requiring frequent cleaning (sand too fine).

4. Missing supernatant drainage system ® long drainage periods for dewatering the filter box will affect the biology in the sand bed

5. Slow sand filter beds with areas larger than 50 m² ® long cleaning periods will reduce or kill the biological filter activity

6. Missing installations for watering the sand bed from bottom to top ® air binding in the sand bed resulting in an initially high filter resistance.

7. Installations not properly protected against unauthorized handling.

Common operational problems

1. Turbidity and suspended solids concentration in the raw water too high for SSF application. Turbidity should preferably be less than 10 turbidity units and the suspended solids concentration lower than 2 5 mg/l to achieve reasonable filter operation.

2. Missing auxiliary equipment such as tools and sand washing installations. Failing to clean and replace the sand will lead to exhaustion of the sand bed.

3. Untrained caretakers who do not understand the SSF process are generally not motivated to operate the treatment plant properly.

Roughing filter theory

Filtration is more an art than a science. This saying also applies to roughing filtration. Numerous researchers have tried to describe the filtration mechanisms in mathematical models applying either the phenomenological or the trajectory approach. The first one uses simple but important variables such as filtration rate, filter size, depth and porosity to describe filter efficiency. The second approach focuses more on transport mechanisms of the individual particle and its behaviour in the single collector. The phenomenological and trajectory approach will be used in this short summary on filtration to provide some more theoretical information on the mechanisms of roughing filtration.

Transport Mechanisms

The trajectory approach, describing the route of a clay particle through a roughing filter, has been vividly depict in Chapter 9.2. Additional analytical considerations regarding this mechanism are given hereafter.

Screening, as shown in Fig 4/1, is not relevant in roughing filters since the pore sizes are considerably larger than the particles generally encountered in suspensions. The ratio between a clay particle of 4 mm in diameter dp and different pore sizes do is illustrated in the following table.

gravel size dg

[mm]

16

8

4

pore size do

[mm]

2.5

1.25

0.63

ratio do/dp

[-]

625

313

156

Sedimentation is the next possible process for solid matter separation. Under the conditions described in Fig. 4/2 and shown in the following table, the ratio between the settling distance ds travelled by the clay particle during its flow through the pore and required total settling height hs is very important.

settling velocity

vs

0.01 mm/s

for a 4 mm particle

pore length

Ip

4 mm

for 16 mm gravel

filtration rate

vF

0.5 m/h


flow velocity

veff

0.4 mm/s

for 35 % porosity

flow time

tf

10 s

(Ip / veff)

settling distance

ds

0.1 mm

(vs ´ tf)

settling height

hs

1.25 mm

(hs = 0 5 do)

ratio

hs/ds

12.5



Fig. 4/1


Fig. 4/2


Fig. 4/3


Fig. 4/4

Interception decreases porosity and settling height hs and enhances solid matter removal by sedimentation. However, as illustrated in Fig. 4/3, solids accumulation in roughing filters does not significantly improve solid matter separation. This is also presented in the following table.

initial porosity

po

35 %


filter load

s

5 9/1

(accumulated solid per filter volume)

taken up volume

ma

2.5 %

for a 0.2 g/cm³ density

actual porosity

pa

32.5 %

(PO - ma)

Hydrodynamic forces are capable of carrying the particles in still water zones as illustrated in Fig. 4/4. In such prevailing conditions, the clay particle can settle on the gravel surface as calculated in the table below.

settling velocity

vs

0.01 mm/s

for a 4 mm particle

settling distance

ds 2 mm



settling time

ts

200 s

(Is/vs)

The "1/3-2/3 Filter Theory''

The following very simplified model elucidates the filter removal kinetics and is based on the considerations described on page IX-4 of Chapter 9.

gravel layer

separated particles

remaining particles

removal [%]


300 mg/l

(removal in % per layer)

1

100

200

33

2

67

133


3

44

89


4

30

59


5

20

39





90

6

13

26

(16.5% layer)

7

9

17


8

6

11


9

4

7


10

2

5


11

1.5

3.5





99

12

1.2

2.3

(1.5% layer)


2.3 mg/l


This simple arithmetic exercise clearly proves that solid matter separation by filtration can be described by an exponential equation as subsequently exemplified by equation (1). However, filter efficiency does not only depend on particle concentration but also on size and settling characteristics. Furthermore, filter variables such as filtration rate and size of filter medium strongly influence filter performance. Finally, the accumulated volume of separated solids per unit of filter bed volume, known as filter load, also determines the actual filter efficiency.

Extensive parameter tests were conducted to determine the influence of different design parameters on the performance of horizontal-flow roughing filters. The tests were conducted in the laboratory with filter cells of 10 - 30 cm and 20 - 40 cm length for differently sized filter material and different filtration rates varying between 0.5 and 2 m/h. A kaolin stock suspension was used to simulate a suspended solids concentration of about 200 mg/l. Particle size counts were performed with a Coulter Counter TA II. These laboratory tests are described in [10] and the data obtained were evaluated by a multiple linear regression analysis to develop a filtration model for horizontal-flow roughing filtration of which the following is an excerpt.

According to the established filter theory, the filter efficiency can be expressed by the filter coefficient [cm-1] (described by Iwasaki's equation) or by some other collector efficiency factors

(1)

with c as solids concentration and x filter depth. The filter coefficient is a function of the interstitial flow pattern (depending on filtration rate and pore size distribution), of the grain surface area (depending on size and shape of the filter medium) and of Stoke's law parameters of the water and the suspended particles (particle size, density). Straining mechanisms are neglected and surface chemical conditions are assumed to be constant. The volume of retained solids increases with progressive filtration time and hence, augments the filter surface area available for deposition but decreases at the same time the filter porosity. The degree of filter clogging can be expressed by the volume filter load which is the volume of deposited material per unit filter bed volume. varies with position x in the filter as well as with filtration time t. is therefore not a first order removal rate constant, but varies with time and position in the filter. A more appropriate model parameter is considered to be the particle specific filter coefficient which for a short time interval is constant throughout a homogeneous filter layer. The removal of a particle fraction of the size dpi can thus be formulated by

(2)

with as concentration of particles of size dpi. Assuming the total filter length as a multi-store reactor consisting of a series of small filter cells, the performance of a HRF can be calculated on the base of the filter cell test results. For each of the cell tests may be approximated by

(3)

resulting in different relations of as function of filtration velocity, grain size, particle size and the time dependent filter load c, according to experimental conditions.

Knowing as function of the different design variables and of the filter load , it is possible to calculate at a certain time t in steps of layer thickness (close to the length of the experimental filter cells) the effluent of each particle fraction by

(4)

and the total suspended solids concentration after an element

(5)

The volume filter load may be calculated in short time intervals from the particle volume balance equation for a small filter element

(6)

with as filter velocity, as removed particle volume of size dpi and as kth, time interval from the beginning.

All the dependencies of from the various filtration variables could be derived from the small filter cell parameter tests by empirical analysis of the test data.

The influence of the particle capture volume on the filter coefficient was formulated according to Ives5 and transformed to the particle specific filter coefficient Starting with an initial filter coefficient , the filter coefficient becomes

(7)

where considers the increased surface area available for deposition (k = constant) and the third term accounts for the porosity decrease and the resulting increase of the interstitial velocity. is the initial porosity and is a constant describing the influence of the gradually constricting pores. Exhaustion of the filter is attained when the suspended particles of a certain size are no longer retained ( = 0) and the quantity of deposits in the pores attains its ultimate value . It can be noticed that is the volume deposit of all particles together, but varies with particle size dpi.

From the experimental results in Fig. 4/5, it may be concluded that does not substantially increase with progressive filter load . Apparently, the effect of surface area increase for additional deposition plays a minor role in HRF and straining effects may be completely neglected. A conservative assumption is made by setting

k = 0 (8)

Thus, equation (7) is simplified considerably. At = 0, may be expressed as function of and to

(9)

The resulting equation for therefore becomes

(10)

The initial filter coefficient and the ultimate filter load are determined on the basis of the parameter test results summarised in Fig. 4/5. The general considerations of Boller4 for the determination of the filter constants were adapted and applied accordingly.

The value of the initial filter coefficient depends on the process variables (filtration rate), dg (filter grain size) and varies with particle size dpi. A matrix comprising the measured initial filter coefficients for different values of the process variables and sizes of suspended solids was transformed by a multiple linear regression analysis to the following general equation

(11)

The values for

= 0.02 [cm-1]
= -0.88
= -0.85
= 1.0

were determined from 36 data points with a correlation coefficient of 0.96.

The ultimate filter load is similar to the initial filter coefficient a function of the different process variables. The volumetric filter load [ml/l] was determined by the calculated and measured mass filter load [g/l] applying a specific wet sludge density of 1.15 g/ml. The transformation of a similar matrix by multiple linear regression analysis resulted in the equation

(12)

with the following values

bo = 10 [ml/l]
= -0.80
= -0.18
= 0.35

The 20 data points used showed a correlation coefficient of 0.97.

With the established equations for and , it is possible to calculate in time steps and filter layer elements the resulting particle size distribution in function of time and space. Changes in grain size, filter velocity and particle size distribution may be adjusted by adapting . Hence, the filter performance of a full scale HRF can be simulated by the arrangement of a number of short filter layer elements each specified with its own . The increment of filter load within each element is calculated over a time step and its influence on is considered in the next time interval.

The above studies have only focused on the physical removal mechanisms. Roughing filters may, however, also develop biological activities which enhance particle removal. Such investigations were carried out with suspensions containing clay (kaolin), algae (Scenedesmus) or a combination as described in [11]. The laboratory tests were also evaluated by multilinear regression models. The following equations were obtained for steady state conditions.

for kaolin:

Ce/Co = 0.188 + 0.0231 media +0.136 flow - 0.101 depth

for Scenedesmus algae:

Ce/Co = - 0.170 + 0.253 flow + 0.142 media - 0.021 depth - 0.0128 media2

for kaolin + algae:

Ce/Co = 0.0280 + 0.0902 flow + 0.0181 media - 0.0558 depth


where


- Ce is the effluent concentration in [mg/l]

- Co is the inlet concentration in [mg/l]

- "media" is the gravel size in [mm]

- "flow" is the filtration rate in [m/h]

- "depth" is the filter length in [cm]


Fig. 4/5 Filter Coefficient in Relation to Filtration Rate, Grain Size and Filter Load

This research has also revealed that filter efficiency is dependent on design variables such as filtration rate, gravel size and filter length. However, as outlined in other investigations [36, 47], flow direction is of minor importance for filter performance. These laboratory tests have shown that kaolin removal is enhanced by the addition of algae which destabilise the clay into aggregates that are more efficiently removed by roughing filtration. However, hydraulic filter cleaning is more difficult when the clay is coated with organic matter. Hence, the presence of biomass in a roughing filter probably does enhance solid matter separation but may also hinder hydraulic filter cleaning.

The chemical properties of the suspension; i.e., the suspension stability is, however, not taken into consideration in these filter models. Filter models are not universally applicable to all types of raw water as filter efficiency is strongly influenced by the raw water quality. Such semi-empirical models may therefore be used to investigate the overall influence of specific design parameters or to optimise treatment plant design on the basis of a comprehensive pilot plant field test programme.

Pilot plant design examples

Pilot plant tests must be carefully planned, designed and monitored to achieve conclusive results required for design development and performance prediction of future full-scale treatment plants. Implementation of the following aspects are important in pilot plant tests:

· gravity flow should be applied in a pilot plant. Due to the unreliable operational system and possible unavailability of pumps with small discharge rates, pumps should thus be avoided whenever possible, except for raw water lifting. This may be carried out with a higher discharge pump to fill a raw water tank twice a day.

· V-notch weirs or small orifices are appropriate devices for flow control. Use of clamps or small valves is not recommended as they rapidly clog and are, thus, not capable of maintaining a constant flow rate. Constant flow rate devices such as a floating inlet pipe (see also Fig. 33 on page IX-8) are a further option for flow control.

· the diameter of the filter columns should not be too small to reduce sidewall short-circuiting in pilot filters. The ratio recommended for dcolumn/dmedia should be 25. However, since the media is not densely compacted along the sidewalls, the recommended ratio can be reduced for roughing filters.

· flow rates should not be too small; i.e., not lower than 0.5 l/min., as they are difficult to maintain at a constant level.

· the hydraulic load on the pilot unit should be close to the highest recommended value, e.g. slow sand filter units should be operated at 0.2 m/h filtration rate. This will reduce the filter running period and allow more filter runs within a given period.

· the size of the pilot plant units should not be too small and meet the aforementioned recommended minimum flow rate of 0.5 l/min. The following minimum pipe diameters are recommended:

upflow roughing filter

for VF min. = 0.6 m/h,

Fmin. = 30 cm

Q = 0.6 l/min.

slow sand filter

for VF min. = 0.2 m/h,

Fmin. = 50 cm

Q = 0.7 l/min.

· the structure of the pilot units must be sturdy. Concrete rings, plastic pipes, steel containers or concrete blockwork are adequate structures. Wooden boxes are not recommended as they are often not watertight. The structures can be temporary installations which may be used several times in different places.

· the tested filter material must be the same as the one foreseen for full-scale treatment plants. It must be clean and adequately graded.

· water samples for water quality analysis should be taken only at filter inlet and outlet. Other sampling points in the filter bed should be installed only in large pilot units where sampling must be conducted with great care in order not to resuspend the solids accumulated in the filter bed.

· the pilot plant should be protected; i.e., shaded to prevent water heating by the sun, roofed to avoid disturbance by heavy rainfall and enclosed to hinder entrance of unauthorised people.

· local staff are preferably employed to carry out the monitoring programme. At least two persons should be trained by the project engineer responsible for the field test studies. He will also have to visit the pilot plant periodically, supervise the local staff and evaluate continuously the field test results.

· the monitoring programme is mainly carried out by local staff with field test equipment stored at the site. Laboratory staff may be involved to analyse the water for its specific water quality parameters. A possible field test monitoring programme is proposed in Table 5/1.

Table 5/1 Field Test Monitoring Programme

control / sampling frequency

Parameter

raw water

pretreated water by roughing filter

treated water by slow sand filter

flow rate

-

daily

daily

filter resistance

-

weekly

every 2 days

turbidity

daily

daily

daily

filtrability

weekly

weekly

weekly

settleable solids

at high turbidities

-

-

Fecal coliforrns

monthly

monthly

monthly

chemical substances

if required at defined intervals

-

if required at defined intervals

The following three figures illustrate possible pilot plant layouts. The first example shown in Fig. 5/1 uses concrete or plastic pipes to field test upflow roughing filters and slow sand filters. The second example shown in Fig. 5/2 illustrates the possible use of a steel container fitted with a horizontal-flow roughing pilot filter. Since the steel container is mounted on a mobile loading platform of a truck, it can be used elsewhere. The third example also illustrates a pilot testing unit for horizontal-flow roughing filters. Fig. 5/3 shows the simplest structure consisting of an excavated trench coated with a plastic sheet and filled with gravel filter material. To allow proper installation of the filter material, open containers are necessary for horizontal-flow roughing pilot filter units since the filling of gravel would be difficult with pipes.


Fig. 5/1 Pilot Plant Examples consisting of Upflow Roughing Filters and Slow Sand Filters


Fig. 5/2 Example of a Mobile Pilot Plant for a Horizontal-flow Roughing Filter


Fig. 5/3 Example of a Trench Cut Pilot Plant for a Horizontal-flow Roughing Filter

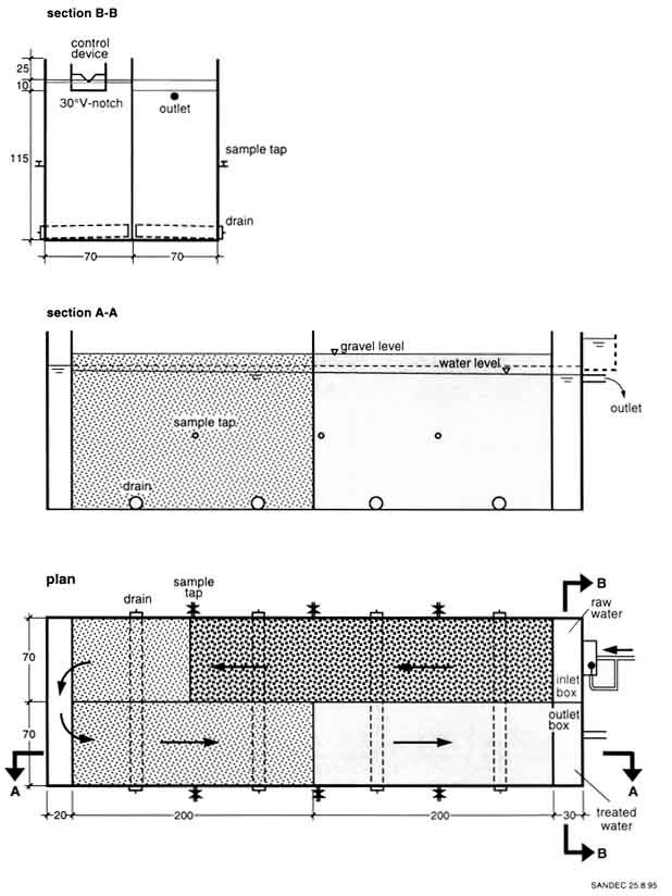
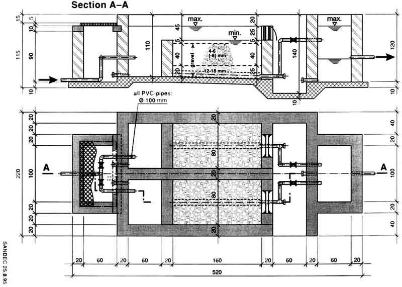
Roughing filter design examples


Design Example of a Dynamic Filter Annex 6/1


Design Example of an Intake Filter Annex 6/2


Design Example of a Horizontal-flow Roughing Filter
Annex 6/3


Design Example of an Upflow Roughing Filter Annex 6/4


Possible Layouts for the Integration of Upflow Roughing Filters into Existing Sedimentation Tanks or Slow Sand Filters Annex 6/5


Design Example of a Compact Water Treatment Plant Annex 6/6


Algorithm for the Design of Surface Water Treatment Schemes Annex 6/7

Outline for caretaker training

1. Introduction

Proper caretaker training in operation and maintenance of water supply installations is, in many cases often seriously neglected. Incorrect use, damage and finally abandoned installations are generally the consequences of such a neglect. However, since sound and economic operation of a water supply system requires, among other prerequisites, well-trained and skilled manpower comprehensive training of local staff is essential.

Transfer of knowledge is the main goal of a training programme. However, since motivation and guidance of the caretakers are also important components, training should therefore not be limited to a short-tem introductory course.

Caretakers are preferably trained in their local language by supervisors attached to the operation and maintenance section of the responsible institution. These supervisors will also visit the water supply schemes on a regular basis, check their proper operation, support local staff in their activities, and maintain an exchange of information between field and office personnel.

A training programme is briefly outlined below. The subject area of the programme only covers the treatment process as more comprehensive training guidelines for the operation and maintenance of rural water supply schemes have already been published by IRC [63].

2. Schedule

An ideal training programme may be divided into three parts. Timing, aim, location and duration of the three parts are summarised in Table 7/1.

3. Outline of the Syllabus

The topics to be covered by the different parts of the training programme are suggested hereafter. The list may be incomplete and may possibly need to be adapted to local conditions.

Part 1:

- visit of an existing treatment plant comprising RF and SSF
-explanation of the treatment process and operation of the plant
- discussion of the water quality problems faced by new schemes
- assessment of the interest of future users in water treatment

Part 2: - main objectives of water treatment

- main features and processes of RF and SSF
- filter operation, especially

· discharge measurements and adjustment
· determination of filter resistance
· filter (re)starting and cleaning procedure
· hydraulic and manual filter cleaning
· gravel and sand cleaning
· water sampling

- conduct simple water quality tests (turbidity, filterability, settleable solids)
- monitoring the treatment plant (keeping of logbook)
- maintenance work
- annual work plan

Part 3:

- refresh and consolidate the basic training course (Part 2)
- on-site training in plant operation and maintenance
- review and discuss operational problems encountered
- inspect the installation and organise major maintenance work
- review of logbook and monitoring results

Table 7/1 Training Programme

Part

Timing

Aim

Location/Duration

1

pre-project phase
or
before/during construction of new treatment plant

presentation of treatment process to future users and
motivation

existing RF and SSF plant
-
1 day

2


during or at the end of the construction phase

basic training of future caretakers in the operation and maintenance of RF
and SSF

existing or new RF and
SSF plant
-
3-5 days

3


during the operational phase

supervision, guidance, support of the operation and maintenance of RF
and SSF (information exchange)

on the site

-
by regular field visit

Monitoring of filter operation

1. Aim and Procedure

The aim of a monitoring programme is to:

- assess treatment plant performance
- establish guidelines for treatment plant operation
- improve treatment plant operation and efficiency

The caretaker carries out the field test and monitors, with the help of a logbook, operation and performance of the treatment plant. The supervisor, attached to the operation and maintenance section of the responsible institution, controls the monitoring programme of the caretaker by means of regular visits, takes water samples to be analysed in the laboratory, and summarises the monitoring results in annual reports.

2. Field Records

The monitoring programme has to cover the quantitative and the qualitative aspects. Discharge measurements characterise the operational conditions of the treatment plant and provide the quantitative information. Water quality tests allow qualitative assessment of the treatment process. Treatment plant operation requires flow control and adjustments on a daily basis. The water quality tests should also be carried out regularly; i.e., weekly. The equipment necessary for discharge measurements and water quality tests must therefore always be available at every treatment plant.

A field monitoring programme proposal is summarised in Table 8/1.

3. Bacteriological and Chemical Water Analyses

Bacteriological and chemical water analyses require more costly equipment generally not available at every treatment plant. The tests should also be performed by experienced staff. It is therefore recommended for the supervisor to perform such tests either at the site with field test equipment brought from the laboratory, or to take samples which will be analysed in the laboratory. Since field testing excludes the risk of delay and mishandling of the water samples, it should therefore be applied whenever possible, provided the equipment is properly maintained and checked prior to each field visit.

A bacteriological and chemical monitoring programme proposal is summarised in Table 8/2.

4. Field Visits

The supervisor will personally conduct on-site training of the caretaker, and will also be present during the initial stars of treatment plant operation. He will later assist the caretaker in his daily activities and supervise operation, maintenance and monitoring of the plant. Frequency of his visits is dependent, among other criteria, on the ability of the caretaker to operate his water supply system. However, field visits will at first be carried out weekly, then monthly and later every two to three months.

Such a post-project assistance is essential to ensure proper use of the installations, to identify possible problems at an early stage, and to compile practical experience gained for future projects.

5. Evaluation

The supervisors will compile the results of the monitoring programme in annual reports which will also contain the data sheets of the field test records and possible laboratory analyses. They will also comprise a short description of the operational experience (plant performance, encountered practical problems, exceptional events) and planned activities (operational modifications of the plant, major maintenance work, etc.).

Table 8/1 Field Monitoring

parameter

record

frequency

flow rate

RF + SSF

every 2 days

filter resistance

RF

1 x / week

filter resistance

SSF

every 2 days


of raw water


turbidity

and RF + SSF effluents (at

2 x / week

filtrability

high turbidity, filtrate of

(daily at periods of high


each RF gravel pack)

turbidity)

settleable solids

raw water

1 x / week

Table 8/2 Bacteriological and Chemical Monitoring Programme

analysis

sample

frequency

E.coli or total coliforms or
Fec. Strept.

raw water and RF + SSF
effluent

monthly for the first half
year, later occasionally

pH



conductivity



total hardness



alkalinity

raw water

every 2 months

Ca2+



Mg2+



susp. solids cone.



Conversion Table

length

1 m

=

3.2808 ft

1 ft

=

0.3048 m


1 mm

=

0.0394 in.

1 in.

=

25.4 mm

area

1 m²

=

10.7639 ft2

1 ft2

=

0.0929 m²


1 cm²

=

0.1550 in.2

1 in.2

=

6.452 cm²

volume

1 m³

=

35.31 ft3

1 ft3

=

0.0283 m³


1 litre

=

0.2642 gal

1 gal

=

3.785 litre

velocity

1 m/h

=

3.2808 ft/h

1 ft/h

=

0.3048 m/h


1 m/s

=

3.2808 ft/s

1 ft/s

=

0.3048 m/s

flow rate

1 m³/h

=

35.31 ft3/h

1 ft3/h

=

0.0283 m³/h


1 m³/s

=

35.31 ft3/s

1 ft3/s

=

0.0283 m³/s


1 m³/h

=

264.2 gal/h

1 gal/in

=

3.785 litre/h


1 m³/s

=

264.2 gal/s

1 gal/s

=

3.785 litre/s

filtration rate

1m/h

=

0.4092 gpm/ft2

1 gpm/ft2

=

2.444 m/h

temperature

1°C

=

(1°F - 32)x5/9

1°F

=

9/5°C + 32

Acknowledgements and credits

Financial Support

SANDEC's Roughing Filter Project has been cofinanced by

- the Swiss Development Cooperation (SDC)
- the Swiss Federal Institute of Environmental Science and Technology (EAWAG)
- the City of Zurich the Swiss Gas and Water Industry Association (SVGW)
- the Zurich Water Supply

Major Cooperation Partners

Numerous local institutions and organisations cooperated with SANDEC in the Roughing Filter Project. We would like to express our appreciation for their interest and efforts. Special thanks go to:

- CINARA, Gerardo Galvis
Instituto de Investigación y Desarrollo en Agua Potable, Saneamiento Básico y
Conservación del Recurso Hídrico
A.A. 25157, Cali, Colombia

- DelAgua, Mauricio Pardón
c/o Centro Panamericano de Ingeniería Sanitaria y Ciencias del Ambiente (CEPIS)
Casilla Postal 4337, Lima 100, Peru

- UNR, Ana María Ingallinella
Dept. de Hidráulica e Ingenería Sanitaria
Universidad Nacional de Rosario
Riobamba 245 bis, 2000 Rosario, Argentina

- Afrowood Ltd., Kolly Dorcoo
P.O. Box 5001, Accra-North, Ghana
- Helvetas Cameroon, Thomas Zimmermann
P.O. Box 114, Bamenda, Cameroon

- UDSM, Tolly Mbwette
Faculty of Engineering, University of Dar es Salaam
P.O. Box 351 31, Dar es Salaam, Tanzania

- EWW, Mesfin Shenkut
Ethiopian Water Works
P.O. Box 30504, Addis Ababa, Ethiopia

- BNHP, Sadig Abdel Basit
Blue Nile Health Project
P.O. Box 101, Wad Medani, Sudan

- ZHAS, Xu Xiang-Kuan
Zhejiang Health and Anti-Epidemic Station
17 Lao Zheda Road, Hangzhou 310009, China

Reviewers

For their helpful comments and suggestions we would like to thank the following invited reviewers:

-Gerardo Galvis, CINARA, Cali, Colombia
-Mauricio Pardón, PAHO, Guatemala
-Ivanildo Hespanhol, ex WHO, São Paulo, Brazil
-Luiz di Bernado, USP, São Paulo, Brazil
-Anna Maria Ingallinella, UNR, Rosario, Argentina
-Sergio Caporali, CEPIS, Lima, Peru

-Kolly Dorcoo, Afrowood, Accra, Ghana
-Thomas Zimmermann, Helvetas, Bamenda, Cameroon
-Tolly Mbwette, UDSM, Dar es Salaam, Tanzania
-Mesfin Shenkut, ex SDR, Addis Ababa, Ethiopia
-Amadeus Maiga, EIER,, Ougadougou, Burkina Faso
-Gunnar Shultzberg, ex UNDP/WB, Nairobi, Kenya
-E. Masendu, UoZ, Hahare, Zimbabwe
-Gerhard Offringa, WRC, Pretoria, South Africa

-R. Paramesivan, NEERI, Nagpur, India
-Srilal Wijegoonewardene, NWDB, Mount Lavinia, Sri Lanka
-Chongrat Polprasert, AIT, Bangkok, Thai land
-Niu Shiru, CAPM, Beijing, China
-Xu Xiang-Kuan, ZHAS, Hangzhou, China

-Jan Teun Visscher, IRC, The Hague, The Netherlands
-Nigel Graham, Imperial College, London, England
-Barry Lloyd, University of Surrey, Guildford, England
-Brian Clarke, University of Surrey, Guildford, England
-Robin Collins, University of New Hampshire, Durham, USA
-Gourisankar Ghosh, Unicef, New York, USA
-John Kalbermatten, ex WB, Washington, USA
-José Hueb, WHO, Geneva, Switzerland

-Ernst Trüeb, ETH, Winterthur, Switzerland
-Maarten Schalekamp, ax-President IWSA, Zurich, Switzerland
-Karl Wehrle, SKAT, St. Gallen, Switzerland
-Armon Hartmann, SDC, Berne, Switzerland
-Paul Peter, SDC, Berne, Switzerland
-Markus Boller, EAWAG, Switzerland

Drawings

All Figures and Illustrations were developed by the author. However, the following drawings were adapted from original designs cited here:

Fig. 5/2 adapted from

Village Water Reservoirs Project, Tamale, Ghana

Fig. 5/3 adapted from

Pilot Plant Plumbon, Indonesia
CDC, Centre for Developing Countries, Lyngby, Denmark

Fig. 6/1 adapted from

Guzang II, Helvetas, Bamenda, Cameroon

Fig. 6/2 adapted from

Jomatt College, Helvetas, Bamenda, Cameroon

Fig. 6/3 adapted from

Water Treatment Plant CIDER, Restrepo
CINARA, Cali, Colombia

Fig. 6/4

Bambui, Helvetas, Bamenda, Cameroon

Fig. 6/6

Nsuke, Helvetas Bamenda, Cameroon

Photos

All Photos were taken by the author except for:

Photo on page V-4

DelAgua, Peru

Photo on page V-7

Roland Schertenleib, SANDEC

Photo on page VII-5

Toni Lejeune, SDR

Photo on page VIII-4

Arnold Furrer, SDR

Photo on page Xl-3

DelAgua, Peru

Photo on page XII-8

Patrik Lund, CDC

Photo on page XIII-3

Toni Lejeune, SDR

Photo on page XIV-11

Andrea Pozzi, ETH

Back covert

This publication presents the concept, design and field experience of roughing filters applied as pretreatment prior to slow sand filters. It describes treatment processes which convert turbid surface water into safe drinking water. The presented treatment methods are simple, efficient and reliable and, therefore, appropriate for rural water supply schemes.

Surface water treatment generally requires at least two treatment steps. The first step, also called pretreatment, concentrates mainly on the removal of solids. Prefiltration by roughing filters is a simple and efficient process for solid matter separation. However, roughing filters also contribute to a bacteriological water quality improvement. The second step, commonly considered as main treatment, is applied especially to remove or destroy the remaining microorganisms by slow sand filtration and chlorination.

This manual mainly focuses on the design, construction and operation of prefilters and roughing filters. It is recommended as textbook for teachers and students, as design manual for engineers and as operation and maintenance guidelines for technicians. The manual draws its valuable information from a vast field experience documented by the small stories scattered throughout the text.

ISBN: 3-908001-67-6

TO PREVIOUS SECTION OF BOOK