Back to Home
Page of CD3WD Project or Back to list of CD3WD Publications
Indice
-
Precedente - Siguiente
Descripción y aspectos generales. El secado
de lotes de granos y semillas en un secador de lecho fijo es una
operación simple. El costo inicial para la instalación de este
sistema de secado puede estar al alcance de la gran mayoría de
los agricultores, ya que es más bajo que el de un secador
comercial. Otro aspecto interesante de este tipo de secador es su
versatilidad, puesto que se pueden secar diferentes granos y
semillas: café en "cereza", frijol en vaina, maíz en
mazorca, yuca en trozos y cacahuate en rama o desgranado. Este
tipo de secador también puede ser utilizado para curar bulbos de
ajo y cebolla. Las partes que componen el secador de lecho fijo
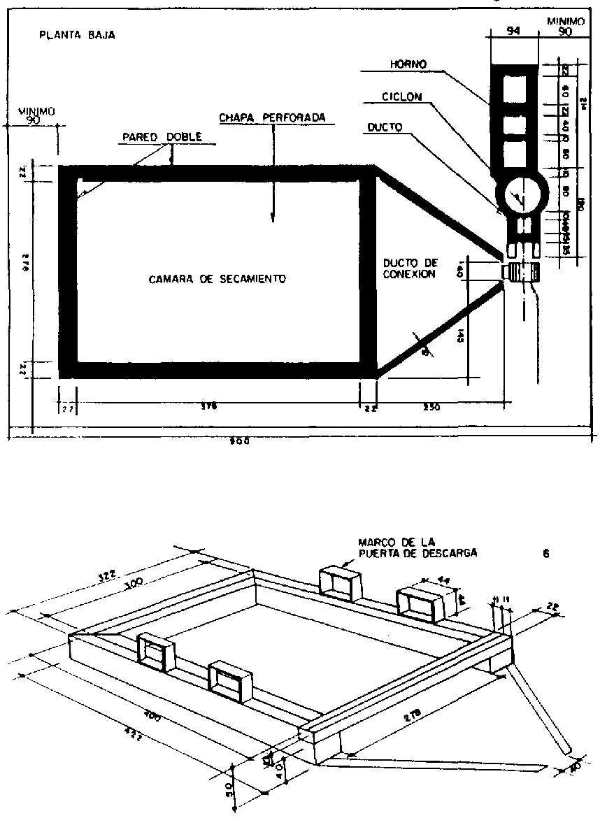
son: i) la cámara de secado, ii) un piso de lámina o chapa
metálica perforada, iii) una cámara de distribución del aire
con expansión gradual, iv) un ventilador para mover el aire y v)
un horno de calentamiento. La construcción en su mayor parte es
de albañilería (figura 24).
Cámara de secado. La cámara de secado se
encuentra arriba de la chapa perforada y en ella se coloca el
material que va a ser secado. Sus dimensiones varían en función
de la cantidad de granos que se va a secar. En el Brasil, por lo
general se utiliza una capa de granos de 0,40-0,60 m de altura,
ya que si se secan los granos con una altura superior se pueden
presentar problemas de falta de uniformidad en el secado. Para
evitar este problema se recomienda revolver los granos a
intervalos regulares, de modo que al final del proceso su
contenido de humedad sea uniforme. Si la capa de granos es muy
alta, es difícil revolver los granos en forma manual. La altura
de la cámara de secado es de 0,70 m y debe estar provista de
puertas en sus paredes laterales con el objeto de permitir la
descarga y el envasado del producto, y se deben colocar
deflectores en sus esquinas para evitar la canalización del
aire.
Figura 24. Vista general del
secador de lecho fijo.
Lámina chapa perforada. La cámara de secado
está separada de la cámara de distribución de aire por una
lámina o chapa metálica perforada de 1,5 mm de espesor. Esta
chapa debe tener perforaciones circulares de hasta 1,5 mm de
diámetro, en un mínimo del 10 por ciento de su superficie
total. La chapa perforada tiene el objetivo de sustentar el
producto y permitir el paso de aire por la masa de granos.
Cámara de distribución de aire con expansión
gradual. La cámara de distribución de aire está
debajo de la chapa perforada. La altura de esta cámara se
dimensiona de modo que la velocidad del aire proveniente de la
expansión gradual sea la menor posible, para evitar pérdidas de
la presión del ventilador y facilitar la distribución del aire
en la masa de granos. Generalmente, esta cámara se construye con
una altura de 0,5 m, lo que facilita el proceso de envasar los
productos durante la descarga del secador. La expansión gradual
es la parte del secador de lecho fijo que conecta el ventilador
con la cámara de distribución del aire. Su principal función,
por lo tanto, es reducir la velocidad del aire que sale del
ventilador. La expansión se debe calcular de modo que el ángulo
de abertura sea el menor posible para que la pérdida de presión
del ventilador no sea muy elevada; sin embargo, se debe tener en
cuenta la longitud de la expansión para que el ventilador no
quede muy lejos de la cámara de distribución del aire, y para
no aumentar innecesariamente el tamaño del conjunto.
Ventilador. El tipo de ventilador más
empleado en el secador de lecho fijo es el centrífugo de aspas
inclinadas hacia atrás. Las dimensiones del ventilador se
calculan en base al flujo de aire que se desea pasar por la masa
de granos y la altura de la capa de granos. El flujo de aire que
se utiliza para el secado de granos en este tipo de secador
varía de 10 a 30 m³ de aire por cada metro cúbico de producto.
La temperatura del aire de secado varía entre 35°C a 70°C. Se
recomienda que el ventilador esté conectado al motor por medio
de correas o bandas de transmisión, ya que el aire de secado
(aire caliente) pasa por el ventilador. La presión que el
ventilador suministra al aire se debe calcular considerando el
producto que presenta mayor resistencia al paso del aire.
Horno para calentamiento del aire. Para
calentar el aire se puede utilizar cualquier tipo de horno o
quemador. El combustible que se utiliza depende del tipo de horno
o quemador y pueden ser los subproductos agrícolas, la leña,
derivados del petróleo, gas metano, propano, etc. En el Brasil,
donde está prohibida la quema de combustibles derivados del
petróleo para el secado de productos agrícolas, se emplea la
leña como combustible en la mayoría de los hornos de los
secadores. En los países con problemas de deforestación se
recomienda utilizar otros productos como la cascarilla de arroz,
paja, residuos de mazorcas, etc.
Dimensiones del secador. En el cuadro 16 se
recomiendan algunas dimensiones para el secador (ancho y largo de
la cámara de secado) las cuales se calcularon en base a láminas
o chapas perforadas de 2 m x 1 m. De esta manera se evita, en la
mayoría de los casos, cortar las chapas en pedazos menores.
CUADRO 16: Dimensiones del secador de
lecho fijo. Recomendaciones
| Tamaño del secador |
Dimensiones |
Area de la chapa
perforada (m²) |
Capacidad máxima de
cámara de secado (m³)* |
| |
Largo (m) |
Ancho (m) |
|
|
| 1 |
6,0 |
4,0 |
24,0 |
16,8 |
| 2 |
5,0 |
4,0 |
20,0 |
14,0 |
| 3 |
6,0 |
3,0 |
18,0 |
12,6 |
| 4 |
5,0 ** |
3,0 |
15,0 |
10,5 |
| 5 |
4,0 |
3,0 |
12,0 |
8,4 |
| 6 |
4,0 ** |
2,5 |
10,0 |
7,0 |
* Para la altura de la cámara de secado de 0,70 m.
** Tamaño del secador para el cual es necesario cortar la chapa
perforada de 2 x 1 m.
Capacidad del secador. En el cuadro 16 se mostró la capacidad
en metros cúbicos para diferentes tamaños de la cámara del
secador de lecho fijo, considerando una altura de 0,70 m. En el
cuadro 17 se presentan las alturas máximas de la capa de granos
que se recomiendan para el secado de varios productos y sus
respectivas capacidades; en el cuadro 18 las características del
ventilador.
CUADRO 17: Capacidad máxima de
secado por lote para diferentes tamaños de secador, en función
del espesor máximo recomendable de la capa de granos
| Producto |
Espesor máximo de
la capa de granos (m) |
Tamaño
del secador - Capacidad máxima por lote (kg) |
| |
|
1 |
2 |
3 |
4 |
5 |
6 |
| Maíz desgranado (750
kg/m³)
|
0,5 |
9.000 |
7.500 |
6.750 |
5.625 |
4.500 |
3.750 |
| Café cereza (600 kg/m³)
|
0,5 |
7.200 |
6.000 |
5.400 |
4.500 |
5.625 |
3.000 |
| Arroz con cáscara (600
kg/m³)
|
0,4 |
5.760 |
4.800 |
4.320 |
3.600 |
4.500 |
2.400 |
| Frijol (750 kg/m³) |
0,5 |
9. 000 |
7.500 |
6.750 |
5.625 |
3.600 |
3.750 |
| Raspadura de mandioca (700
kg/m³) |
0,4 |
6.720 |
5.600 |
5.040 |
4.200 |
5.625 |
2.800 |
| Cacahuate con cáscara (240
kg/m³)
|
0,6 |
3.456 |
2.850 |
2.592 |
2.160 |
4.200 |
1.440 |
| Sorgo (750 kg/m³) |
0,5 |
9.000 |
7.500 |
6.750 |
5.625 |
4.500 |
3.750 |
CUADRO 18: Características
ventilador (flujo de aire y presión estática) recomendable para
cada tamaño de secador
VENTILADOR
*
|
| Tamaño
del secador |
Espesor
máximo de la capa de granos |
Flujo
del aire (m³ min.-1m³
de grano) |
Flujo
total del aire (m³ min.-1) |
Presión
estática (mm de columna de agua) |
Potencia
del motor eléctrico (Hp)** |
| 1 |
0,5 |
20 |
240 |
80 |
10,0 |
| 2 |
0,5 |
20 |
200 |
80 |
7,5 |
| 3 |
0,5 |
20 |
180 |
80 |
7,5 |
| 4 |
0,5 |
20 |
150 |
80 |
5,0 |
| 5 |
0,5 |
20 |
120 |
80 |
5,0 |
| 6 |
0,5 |
20 |
100 |
80 |
4,0 |
* La presión estática fue calculada utilizando como
referencia el arroz con cascarilla.
** Para una eficiencia del 50 por ciento del conjunto
motor-ventilador.
Para elegir el tamaño del secador de una finca, centro de
acopio, etc., es necesario considerar la cantidad de producto que
se desea secar en cada lote, ya que en algunos casos puede ser
necesaria la construcción de más de un secador de lecho fijo,
dependiendo de la cantidad de producto que se cosecha
diariamente. El ventilador del secador de lecho fijo se
dimensiona en base al flujo de aire que se va a utilizar en el
secado y del espesor de la capa del producto. En el cuadro 18 se
proporcionan las características del ventilador para los
tamaños de secadores mostrados en el cuadro 16.
Materiales necesarios para el secador de lecho fijo.
Para un secador de 4 m de largo por 3 m de ancho con capacidad de
7,4 m³, con una altura de la cámara de secado de 0,70 m, se
requieren los materiales que se detallan a continuación. En esta
lista no está incluido el material para el techo y la
instalación eléctrica.
- 1 metro cúbico de tierra de los terrenos de acarreos.
- 110 litros de melaza.
- 25 metros cúbicos de arena lavada.
- 2 metros cúbicos de arena de los terrenos de acarreo.
- 30 sacos de cemento de 50 kg.
- 3 metros cúbicos de cascajo del número 2.
- 1 tubo o caño de cemento de 30 cm de diámetro por 90 cm
de largo.
- 4.000 ladrillos macizos.
- 8 kg de cal (para pintar).
- 2 m de listones de madera de 4 por 2 cm.
- 12 m de tiras de madera de 4 por 2 cm.
- 2 marcos para la puerta de 50 por 50 cm.
- 120 m de hierro para la construcción CA-50 de 6 mm de
diámetro.
- 2 m de ángulo de hierro o cantonera de 3,8 por 3,8 cm.
- 3 m de ángulo de hierro o cantonera de 2,5 por 3,8 cm.
- 4 m de hierro plano de 6 por 3 mm.
- 12 m de tubo galvanizado de tres cuartos de pulgada de
diámetro.
- 6 m de tubo de hierro de una pulgada de diámetro.
- 3 m de perfil de hierro "U" de 1 por 1 cm.
- 100 m de perfil tipo "metalón" rectangular de
2,5 por 5 cm.
- 1 pedazo de lámina o chapa galvanizada del número 16,
de 60 por 43 cm.
- 3 m cuadrados de lámina o chapa galvanizada del número
20.
- 1 pedazo de lámina o chapa de hierro del número 12, de
40 por 40 cm.
- 12 metros cuadrados de lámina o chapa galvanizada
perforada del número 16, con por lo menos 10 por ciento
del área perforada, con orificios de hasta 1,5 mm de
diámetro.
- 12 tornillos (con tuerca) de 1 cm de diámetro por 10 cm
de largo.
- 6 tornillos (con tuerca) de 1 cm de diámetro por 5 cm de
largo.
- 20 tornillos auto-atornillables de 3 mm de diámetro por
3 cm de largo.
- 100 remaches de 2 mm de diámetro.
- 2 bisagras o goznes de 7 cm de altura.
- 1 ventilador centrífugo con flujo de 100 m cúbicos de
aire por minuto y presión estática de 80 mm de columna
de agua.
- 1 motor eléctrico de 5,0 HP.
- Bandas o cadenas de transmisión.
- 1 termómetro con vástago de punta con escala de 0°C
hasta 100°C.
Construcción del secador. El secador de
lecho fijo debe ser instalado, si es posible, cerca del almacén
(figuras 25 a 30).
- Elija y marque el lugar para instalar el secador (figura
25).
- Limpie y nivele el terreno (el área que va a limpiarse
deberá tener un tamaño de por lo menos del doble del
área que va a ser construida).
- Prepare el piso del área que va a ser construida (el
piso debe incluir una acera de 1 metro alrededor de la
construcción con un declive del 5 por ciento).
- Apisone el área a ser construida (el terreno se debe
humedecer para su compactación).
- Esparza una capa de hormigón con relación 1:3:6, de una
altura de 5 cm. Quite los marcos del hormigón.
- Marque el secador y el horno en el piso construido
(figura 26).
- Levante las paredes de la cámara de distribución de
aire hasta 50 cm del piso con una mezcla o argamasa con
relación 1:5.
- Construya una viga de hormigón armado de 10 por 22 cm, a
40 cm del piso.
- Coloque los marcos para las puertas de descarga, de 40
por 40 cm, a 50 cm del piso en los dos lados de la
cámara de secado.
- Construya las paredes de medio ladrillo del ducto de
unión del ventilador a la cámara de secado, empezando
con 40 cm en la unión con el ventilador y terminando con
50 cm de altura (la boca de entrada para el aire del
ducto de unión debe tener 40 por 40 cm). La longitud del
ducto de unión desde el ventilador a la cámara de
distribución del aire depende del tamaño del secador
(figura 27).
- Levante las paredes de medio ladrillo hasta 1,20 m del
piso.
- Construya la parte superior del ducto de unión, con piso
de 5 cm de espesor de hormigón con relación 1:3:6.
- Deje un orificio de 5 cm de diámetro en medio de la
placa, junto a la viga, para instalar el termómetro.
- Construya la base de apoyo del motor soldando pedazos del
perfil metálico en "U" de 3,8 por 3,8 cm de
lado (el tamaño de la base del soporte depende de las
dimensiones del motor eléctrico; el soporte sirve para
alinear y estirar las bandas de transmisión del
ventilador).
- Coloque los tornillos para fijar el ventilador en la base
de apoyo del motor en el extremo del ducto de unión por
donde va a entrar el aire.
- Asiente el ventilador en la entrada de aire del ducto de
unión. Atornille el ventilador.
- Selle la unión del ventilador con el ducto, usando
mezcla o argamasa. Atornille la base de apoyo del motor
eléctrico.
- Ponga el motor y las bandas de transmisión.
- Construya la protección de las bandas de transmisión
con lámina o chapa galvanizada.
- Atornille la protección de las bandas de transmisión en
el ducto de unión y en la base del ventilador con chapa
galvanizada.
- Construya una estructura con el perfil metálico
"metalón" para soportar la chapa perforada del
piso (figura 28). La estructura tiene 4 m de largo por 3
m de ancho. Ponga la estructura metálica del perfil
"metalón" dentro de la cámara de secado.
Construya columnas de ladrillo para apoyar los
cruzamientos de la estructura metálica del perfil
"metalón".
- Distribuya las láminas o chapas perforadas sobre la
estructura metálica. No sobreponga las chapas
perforadas; ellas deben quedar encima de los perfiles
metálicos.
- Fije las chapas perforadas en el perfil metálico con
remaches tipo "pop". Los remaches deben quedar
separados por 20 cm.
- Empiece a fijar las chapas por el lado más próximo al
ventilador; las dos últimas chapas del lado, que están
más lejos del ventilador, deben quedar atornilladas con
tornillos del tipo auto-atornillables.
- Para limpiar la cámara de distribución de aire saque
las chapas atornilladas.
- Construya la descarga de granos del secador (figura 29):
corte un pedazo de lámina o chapa galvanizada del
número 20 para hacer la descarga; doble el pedazo de
lámina; remache los bordes; clave la boca de descarga en
el marco de la puerta. Haga un canal de 2 cm de
profundidad por 0,5 cm de ancho en dos trozos de madera
de 4 por 3 por 50 cm (los canales sirven para ensamblar
la puerta de chapa galvanizada).
- Atornille los pedazos de madera en el marco de la puerta
de descarga con los canales hacia adentro.
- Construya la tapa de la puerta de descarga del secador;
corte un pedazo de lámina galvanizada del número 16, de
43 por 60 cm; doble 3 cm del borde del lado menor.
- Construya la puerta de carga del horno de leña (figura
30): construya el marco de la puerta para cargar el
combustible soldando cuatro pedazos de perfil tipo
ángulo o cantonera de 3,8 por 3,8 por 43 cm; suelde los
pedazos de hierro para formar un marco; corte un pedazo
de lámina de hierro para hacer la tapa de la puerta de
carga; suelde dos bisagras o goznes en la tapa de la
puerta de carga y en el marco; construya la manilla o el
tirador de la puerta con una varilla de madera; fije la
manilla de la puerta con un remache; suelde un pedazo de
hierro doblado en el marco para trabar la puerta.
Figura 25. Preparación del
lugar donde se va aconstruir el secador de lecho fijo.
Figura 26. Diagramas de la
base del secador.
Figura 27. Diagramas que
muestran la forma de acoplar el ventilador al secador.
Figura 28. Estructura
metálica y piso perforado del secador.
Figura 29. Construcción de
la puerta de descarga del secador.
Figura 30. Construcción de
la puerta del horno y de la puerta de inspección.
- Construya tres puertas de inspección para el horno: haga
los marcos de las puertas con lámina galvanizada del
número 20, de 25 por 25 por 20 cm; haga las tapas de las
puertas con lámina galvanizada del número 20, de 22 por
22 cm; (las tapas de las puertas deben ensamblarse en los
marcos por presión). Para abrir y cerrar la puerta ponga
una manilla utilizando los remaches.
- Construya el registro de la entrada del aire de
combustión (figura 31): corte dos pedazos de lámina
galvanizada del número 20, de 17 por 67 cm; doble 5 cm
del borde del lado menor formando la tapa; abra orificios
rectangulares de 10 por 5 cm, distanciados 5 cm, en dos
pedazos de chapa; corte los pedazos de hierro tipo
"U" de 6 por 3 mm de 50 cm de largo, para hacer
la corredera del registro; corte dos pedazos de hierro
plano de 20 mm por 5 mm por 39 cm de largo; corte y doble
5 cm en las extremidades de los pedazos de hierro plano;
doble los pedazos de hierro plano a 10 cm de las
extremidades; suelde los pedazos de hierro tipo plano con
los pedazos de hierro tipo "U" formando el
armazón; coloque la tapa del registro en el armazón.
- Construya cuatro registros para la entrada de aire frío:
corte un pedazo de lámina galvanizada del número 20, de
40 por 60 cm; doble 5 cm del borde del lado menor
formando la tapa; corte dos pedazos de hierro tipo
"U" (de 6 por 3 mm) de 60 cm de largo para
hacer la corredera de la entrada; corte dos pedazos de
hierro tipo plano de 6 por 3 mm, por 61 cm de largo;
corte y doble 5 cm en las extremidades de los pedazos de
hierro plano; dable los pedazos de hierro plano a 10 cm
de las extremidades; suelde los pedazos de hierro plano
con los trozos de hierro tipo "U", formando el
armazón; coloque la tapa del registro en el armazón.
Corte los tubos de hierro galvanizado para hacer las
parrillas: corte 12 pedazos de I metro de tubo de hierro
galvanizado de 12 mm de diámetro externo; corte 24
pedazos de 25 cm de tubo metálico de hierro de 14 mm de
diámetro interno.
- Introduzca los tubos en los electroductos (para que sea
más fácil quite las asperezas con una lima).
- Marque en el piso el horno, el ciclón y el ducto de
conexión con el ventilador.
- Prepare la mezcla o argamasa con 20 partes de tierra de
los terrenos de acarreo por una parte de melaza, para
hacer el horno y el ciclón (en lugar de una parte de
melaza se puede usar una y media parte de azúcar; si la
masa está muy pegajosa, agregue arena). En la
construcción del horno y del ciclón use una capa
delgada de argamasa para alisar el muro.
- Construya las paredes del horno de un ladrillo de
espesor, hasta la altura de 7 cm (figura 32).
- Coloque el registro de la entrada de aire de combustión
en frente del horno, asentándolo en el piso.
- Coloque las puertas de inspección del horno y del
ciclón asentándolas en el piso. Coloque los registros
de la entrada de aire fino después del ciclón.
- Levante las paredes del horno con ladrillos hasta una
altura de 30 cm (para construir el paso entre la segunda
y la tercera cámara de combustión, coloque tres
ladrillos parados, con espacios de 9 cm a 1,25 m en
frente del horno).
Figura 31. Construcción del
registro de la entrada del aire de combustión.
Figura 32. Construcción del
horno de combustión.
- Coloque las parrillas a 30 cm del piso manteniendo los
tubos a 2,5 cm de distancia entre uno y otro.
- Levante las paredes del ciclón y del horno hasta una
altura de 35 cm del piso. Coloque la puerta de carga de
leña a 35 cm del piso.
- Termine las paredes del horno a 80 cm del piso y las del
ciclón a 1 metro del piso (figura 33). La pared interna
de la primera cámara de combustión termina a 45 cm de
las parrillas. La conexión entre la tercera cámara de
combustión y el ciclón se debe hacer a 70 cm del piso.
- Para revestir el horno utilice la misma mezcla o argamasa
que utilizó para pegar los ladrillos.
- Para revestir la parte interna del ciclón utilice la
misma mezcla o argamasa que utilizó para el
revestimiento externo.
- Construya la parte superior del horno de un ladrillo de
espesor; déle forma de cuña a los ladrillos que serán
usados para este propósito.
- Para que la parte superior del horno tenga amarre,
coloque hiladas de ladrillos entreveradas.
- La pared entre la segunda y la tercera cámara de
combustión se debe completar mientras se construye la
parte superior del horno.
- Para construir la parte superior del horno, coloque en el
primer día hasta cuatro hileras de ladrillos y
termínelas después de tres días (figura 34).
- Termine la cobertura del horno después de tres días.
- Corte un borde de 10 cm en uno de los extremos del
conducto metílimetálico.co. Construya una losa de
ladrillo armado encima del ciclón.
- Complete el ducto de 70 cm de altura por 75 cm de ancho
para conectar el ciclón al ventilador (la pared del
ducto debe ser de medio ladrillo de espesor).
- Coloque el armazón del registro de aire frío,
asentándolo en los dos lados, a 15 cm de la extremidad
de la pared del ducto.
- Construya un apoyo de madera para el termómetro (figura
35): fije el apoyo de madera para el termómetro en la
pared del secador, cerca de la abertura deseada, en la
losa que cubre el ducto de unión; ponga el termómetro
en el apoyo; introduzca el bulbo en el orificio hasta una
altura de 20 cm del piso; pinte el secador con pintura de
cal; cure el horno durante una semana, quemando cerca de
15 kilos de leña cada día (figura 36). Durante la
combustión de la leña, el ventilador debe estar
conectado.
En el secador de lecho fijo se puede utilizar cualquier tipo
de combustible para calentar el aire (por ejemplo: quemadores de
aceite combustible, aceite diesel, cáscara de arroz, etc.), para
lo cual basta con reemplazar el horno de leña. La construcción
del secador se realiza, en la forma descrita con anterioridad,
hasta la parte correspondiente al horno. La construcción del
quemador o generador de calor se efectuaría de acuerdo con el
combustible disponible.
Figura 33. Parte superior
del horno de combustión.
Figura 34. Terminado del
horno de combustión
Figura 35. Instalación del
termómetro.
Figura 36. Vista general del
secador ya terminado.
Operación del secador de lecho fijo. La
operación del secador de lecho fijo es simple; sin embargo,
deben tenerse en cuenta algunos detalles para evitar que el
producto se dañe.
- La capa de granos de la cámara de secado debe nivelarse
siempre durante el proceso de secado
- Para iniciar el proceso de secado no es necesario cargar
el secador hasta la altura máxima recomendable; se puede
iniciar con una capa de producto de 0,10 m de espesor.
- Se recomienda la instalación de un termómetro en el
secador para medir la temperatura del aire de secado.
Este termómetro puede ser del tipo carátula, que está
provisto de un tubo de cobre flexible y un bulbo de
longitud suficiente para quedar expuesto al aire de
secado. Se debe observar periódicamente la temperatura
del aire de secado. El control de la temperatura se
realiza abriendo o cerrando las puertas de entrada del
aire frío y la puerta localizada en el recipiente para
la ceniza. En el cuadro 19 se recomiendan las
temperaturas máximas del aire para el secado de algunos
productos agrícolas; también se muestran los intervalos
de tiempo necesarios para mezclar la masa de granos.
Estos consejos son útiles para evitar daños térmicos
al grano y falta de uniformidad en el secado.
- Con el objeto de lograr un almacenamiento seguro, el
grano se debe enfriar después del período de secado.
Para ello, en la última hora del secado se recomienda no
agregar más leña al horno, dejando que se queme la
leña existente y abriendo todas las entradas de aire
frío. De esta manera, la temperatura del aire de secado
disminuye gradualmente, al igual que la temperatura del
producto. El grano está en condiciones de ser almacenado
cuando su temperatura es igual a la del medio ambiente o
superior en un máximo de 3°C.
- La humedad del producto se debe determinar antes del
secado, durante el secado y después que el grano está
frío. De esta manera se puede saber si el producto
alcanzó el contenido de humedad final deseado, o si
quedó húmedo o demasiado seco. La determinación de
humedad del grano se puede efectuar utilizando los
determinadores de humedad que existen en el mercado. El
CENTREINAR desarrolló un determinador de humedad simple
y barato que funciona a base de la destilación y
recolección del agua del grano. Informaciones sobre la
construcción y operación de este determinador de
humedad simple, llamado LATATA, están disponibles en la
publicación de la Serie CENTREINAR N° 7.
CUADRO 19: Temperatura máxima del
aire para el secado de algunos productos agrícolas, en función
de su uso, e intervalos de tiempo para mezclar el grano
| Producto |
Finalidad |
Temperatura máxima 0°C |
Intervalo para revolver el grano
hs. |
| Maíz |
Semilla |
40 |
2 |
| |
Consumo |
60 |
2 |
| Arroz con cáscara |
Semilla |
45 |
2 |
| |
Consumo |
50 |
2 |
| Frijol |
Semilla |
40 |
2 |
| |
Consumo |
45 |
2 |
| Café |
Consumo |
50 |
3 |
| Soja |
Semilla |
40 |
2 |
| |
Consumo |
60 |
2 |
| Raspadura de mandioca |
Consumo |
60 |
2 |
| Cacahuate con cáscara |
Semilla |
30 |
- |
| |
Consumo |
35 |
- |
| Sorgo |
Semilla |
40 |
- |
| |
Consumo |
60 |
- |
Secado de arroz en secador de lecho fijo. Por
lo general, la cosecha de arroz se lleva a cabo cuando los granos
aún están muy húmedos para evitar el excesivo desgrane de las
espigas y la pérdida del grano. Es común encontrar niveles de
humedad superiores al 26 por ciento en arroz cosechado en zonas
húmedas o lluviosas. El secado, por lo tanto, constituye la
operación más importante en el procesamiento del arroz, pues de
esta operación dependerá su calidad y futura comercialización.
Es importante señalar que el producto debe tener buena calidad
al salir del campo, ya que su procesamiento posterior no puede
mejorarla, sino solamente mantenerla hasta el consumo. Un buen
secado puede incrementar el porcentaje de granos enteros en los
molinos hasta en 68 6 70 por ciento, en comparación con el
rendimiento industrial que produce entre el 54 y el 56 por
ciento.
El secado del arroz en el secador de lecho fijo también es
sencillo; sin embargo, la configuración del secador difiere en
comparación con aquellos para otros tipos de granos (Figuras 37,
38 y 39). En relación con la construcción, el único cambio
propuesto en el secador es la existencia de dos cámaras de
secado independientes, conectadas a un mismo ventilador y horno.
Otro aspecto que difiere es la presencia de una válvula o
compuerta para el flujo de aire, que sirve para desviar todo el
aire para una de las cámaras de secado, bloqueando el paso hacia
la otra.
Figura 37. Vista general
del secador de lecho fijo para arroz.
Figura 38. Plano del
secador de lecho fijo para arroz.
Figura 39. Corte con los
detalles del secador de lecho fijo para arroz.
El secado de arroz debe recibir cuidados especiales para que
el producto que se obtiene sea de buena calidad. Así, se
recomienda que la temperatura del aire de secado sea de 50°C
como máximo y la altura de la capa de granos, no mayor de 0,40
m. Además, el secado debe ser efectuado de tal modo que el
producto pase por diversos períodos de reposo. Por lo general,
el producto es sometido a secado durante un período de dos
horas; después se revuelve el grano y se deja en reposo (sin
secado) durante dos horas.
Este proceso se repite hasta que el arroz esté seco
(contenido de humedad cercano al 13%, base húmeda). Un resumen
del proceso de secado, en el que se utilizan las dos cámaras de
secado y la válvula de flujo de aire, se muestra en el cuadro
20.
CUADRO 20: Esquema de la operación de secado
de arroz en el secador de lecho fijo con dos cámaras de secado y
compuerta para el flujo de aire
| Pasos de
la operación |
Operación
cámara 1 |
Compuerta
para el flujo del aire |
Operación
cámara 2 |
| 1 |
Llenado |
Abierta cámara 1 |
|
| 2 |
Secado (1 hora) |
Abierta cámara 1 |
Llenado |
| 3 |
Reposo (1 hora) |
Abierta cámara 2 |
Secado (1 hora) |
| 4 |
Secado (1 hora) |
Abierta cámara 1 |
Reposo (1 hora) |
| |
|
|
mezcla de los granos |
| 5 |
Reposo (1 hora) mezcla de
los granos
|
Abierta cámara 2 |
Secado (1 hora) |
Repetir el proceso hasta que el producto
en la cámara 1
alcance el contenido de humedad deseado
|
| |
Enfriado |
Abierta cámara 1 |
Reposo ( 1 hora) mezcla de
los granos |
| |
Descarga |
Abierta cámara 2 |
Enfriado |
Secador de lecho fijo modelo Tailandia. El secador de lecho
fijo desarrollado y usado en Tailandia para el secado del arroz,
es un modelo semejante al representado anteriormente (con una
cámara de secado). Este modelo puede emplear combustibles
líquidos para calentamiento del aire y también hornos que
queman cascarilla de arroz (figura 40).
Figura 40. Secador de lecho
fijo modelo Tailandia.
Indice
-
Precedente - Siguiente