Back to Home Page of CD3WD Project or Back to list of CD3WD Publications

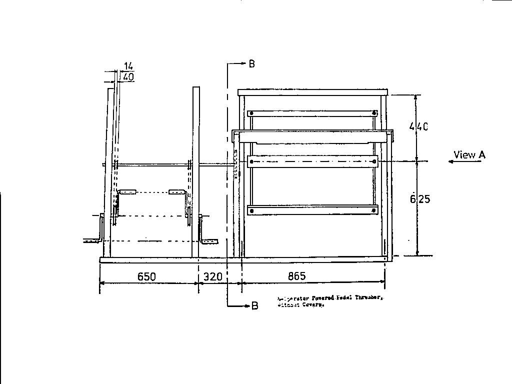
Index.htm pp600.htm 4 MAN PEDAL THRESHER